施設の概要
| 項目 | 内容 |
|---|---|
| 住宅名 | 田見崎住宅1号棟・2号棟(田見崎住宅1号棟・2号棟の地図) |
| 所在地 | 隠岐の島町郡143番地 |
| 構造 | 木造平屋建て |
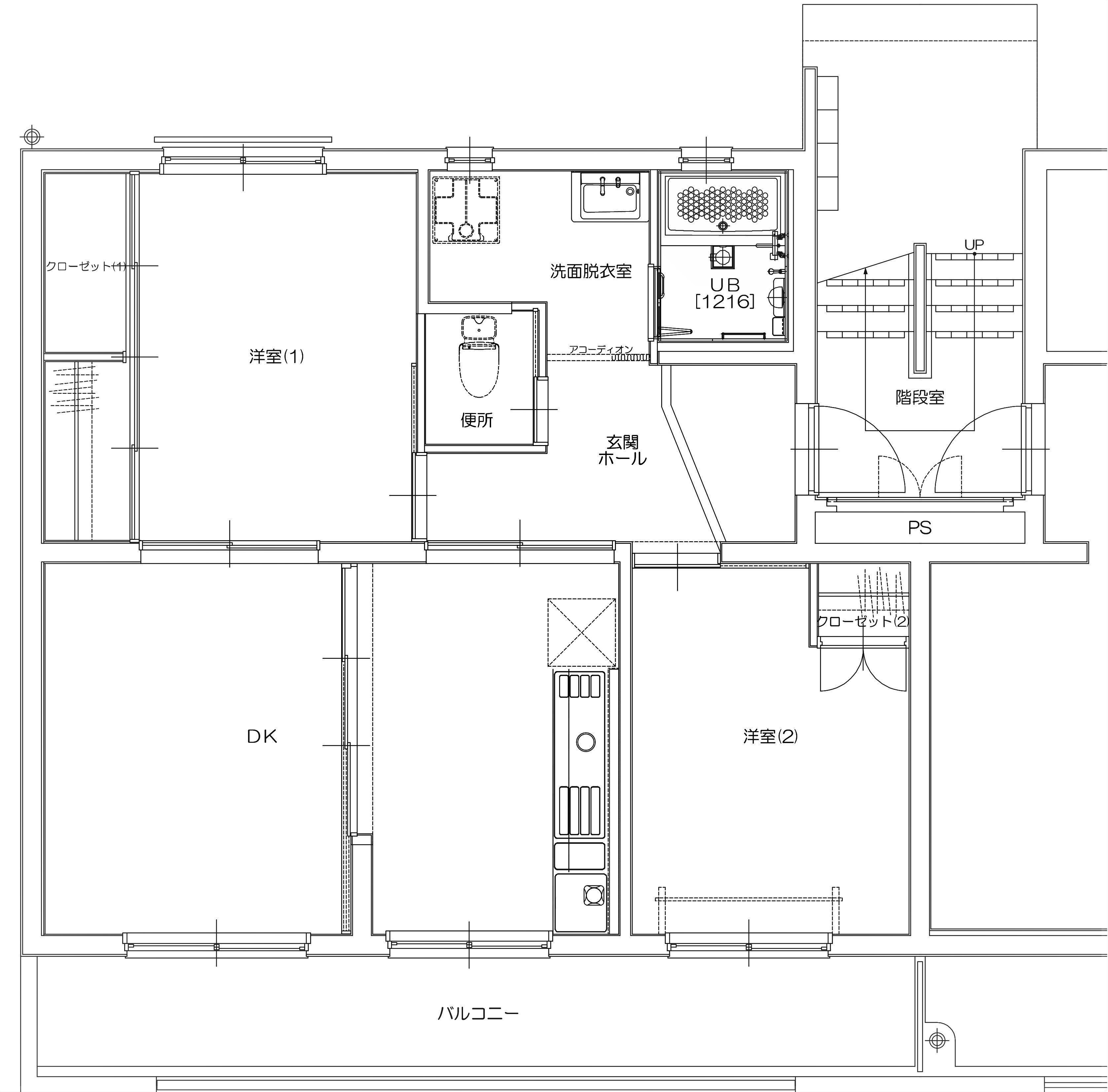
| 間取り | 2LDK(PDFファイル:105.5KB) |
| 延床面積 | 72.79平方メートル |
| 家賃 | 月額20,000円 |
| 敷金 | 家賃三ヵ月分 |
| 入居期間 | 1年以上3年以内 |

田見崎住宅の建物外観

田見崎住宅のダイニングキッチン

田見崎住宅の和室
| 項目 | 内容 |
|---|---|
| 住宅名 | 津戸住宅(津戸住宅の地図) |
| 所在地 | 隠岐の島町津戸49番地 |
| 構造 | 木造平屋建て |
| 間取り | 3DK(JPEG:300KB) |
| 延床面積 | 54平方メートル |
| 家賃 | 月額20,000円 |
| 敷金 | 家賃三ヵ月分 |
| 入居期間 | 1年以上3年以内 |

津戸住宅の建物全景

津戸住宅の洋室

津戸住宅の和室
| 項目 | 内容 |
|---|---|
| 住宅名 | 八田集合住宅(八田集合住宅の地図) |
| 所在地 | 隠岐の島町城北町157番地 |
| 構造 | 集合住宅(中層) |
| 間取り | 2DK(JPEG:762.6KB) |
| 延床面積 | 60平方メートル |
| 家賃 | 月額60,000円 (補足)2年間の減免規定有 |
| 敷金 | 家賃三ヵ月分 |
| 入居期間 | 1年以上2年以内 |

八田集合住宅建物外観

八田集合住宅のダイニングキッチン

八田集合住宅の風呂場
入居対象者
- 50歳未満のUIターン者及びその家族等。
- ただし、次の各号のいずれかに該当する場合は、入居資格を認められません。
- 転勤その他の事由により定住が担保されていない方
- 住所を有する市町村において市町村税等を滞納している方
- 生活保護法(昭和25年法律第144号)の適用を受けている方、及び受けようとする方
- 暴力団員による不当な行為の防止等に関する法律(平成3年法律第77号)第2条第6号に規定する暴力団員である方
- 国家公務員法(昭和22年法律第120号)第2条に規定する国家公務員(独立行政法人通則法(平成11年法律第103号)第2条第2項に規定する特定独立行政法人の役員及び職員を除く。)、独立行政法人等の役員及び職員並びに地方公務員法(昭和25年法律第261号)第3条第2項に規定する地方公務員である又は採用予定である方
お問い合わせ先
島根県住宅供給公社 隠岐住宅管理事務所
電話 08512-3-1350
〒685-8585
隠岐郡隠岐の島町下西78番地2 (隠岐の島町役場2階)